Be the first to live in this newly and fully reimagined modern contemporary estate, nearly 4,000 Sq Ft luxury retreat on a private, .23-acre cul-de-sac lot showcasing 104 feet of waterfront living and private dock. With its bright southern exposure and breathtaking views of the Intracoastal waterway, this home does not disappoint. From the moment you step inside, you’ll be captivated by the open living room, overlooking the pool and waterfront patio. The grand entrance showcases a stunning glass-enclosed wine cellar. The chef’s kitchen is outfitted with Thermador appliances, quartz countertops, and custom maple shaker cabinetry, setting the stage for elegant entertaining.
Property Details
Price:
$3,650,000
MLS #:
RX-11139755
Status:
Active
Beds:
4
Baths:
4.1
Type:
Single Family
Subtype:
Single Family Detached
Subdivision:
ESTOVILLE
Listed Date:
Nov 11, 2025
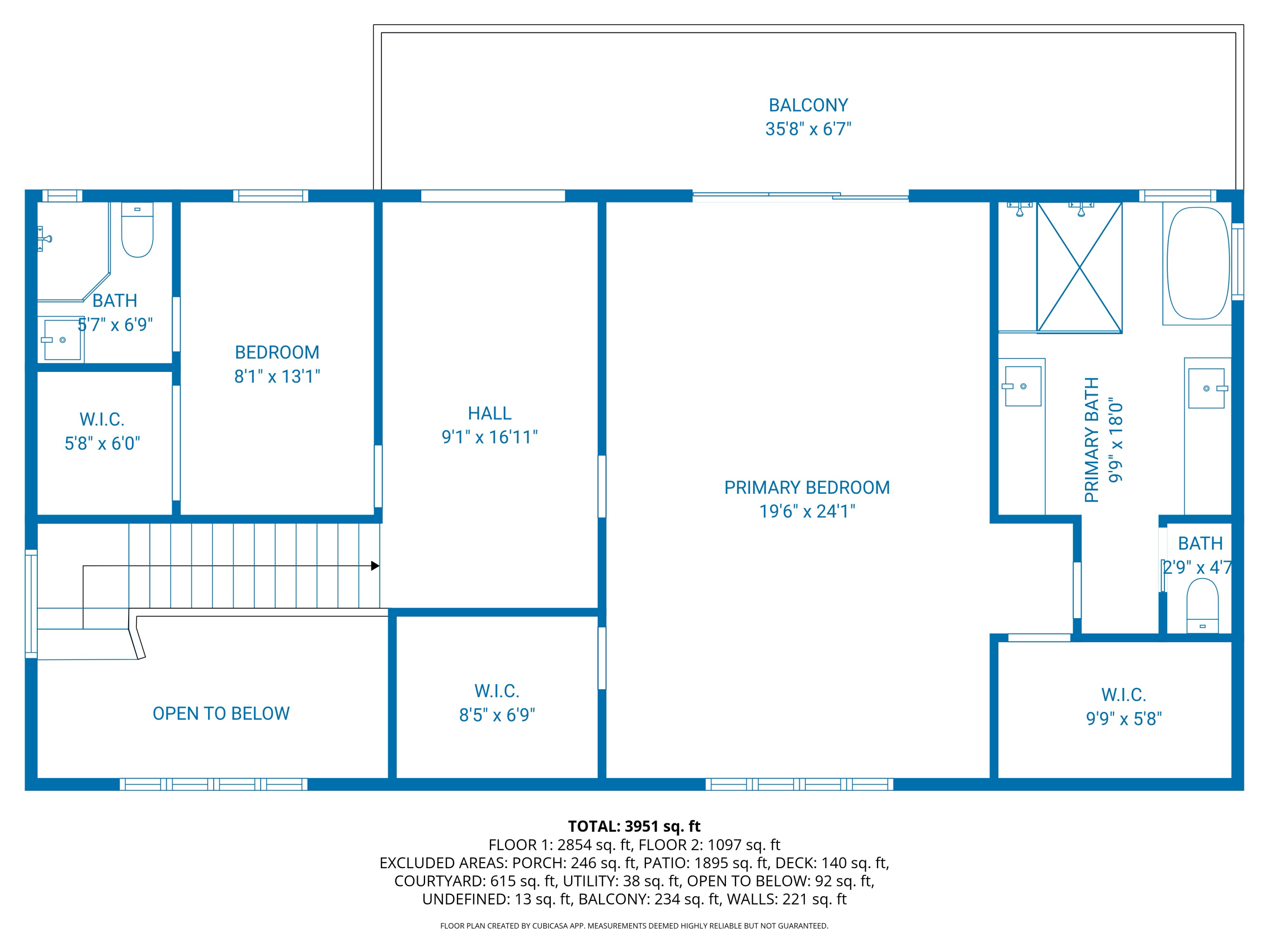
Finished Sq Ft:
4,794
Year Built:
1982
See this Listing
Schools
Elementary School:
Boca Raton Elementary School
Middle School:
Boca Raton Community Middle School
High School:
Boca Raton Community High School
Interior
Pets Allowed
Yes
Exterior
Garage Spaces
2.00
Homeowners Assoc
Mandatory
Storm Protection: Impact Glass
Complete
Total Floors/Stories
2.00
Waterfrontage
104
Financial
HOA Fee
$44
Map
Community
- Address580 SW 15th Street Boca Raton FL
- SubdivisionESTOVILLE
- CityBoca Raton
- CountyPalm Beach
- Zip Code33432
Market Summary
Current real estate data for Single Family in Boca Raton as of Jan 07, 2026
650
Single Family Listed
116
Avg DOM
590
Avg $ / SqFt
$3,703,026
Avg List Price
Property Summary
- Located in the ESTOVILLE subdivision, 580 SW 15th Street Boca Raton FL is a Single Family for sale in Boca Raton, FL, 33432. It is listed for $3,650,000 and features 4 beds, 4 baths, and has approximately 4,794 square feet of living space, and was originally constructed in 1982. The current price per square foot is $761. The average price per square foot for Single Family listings in Boca Raton is $590. The average listing price for Single Family in Boca Raton is $3,703,026. To schedule a showing of MLS#rx-11139755 at 580 SW 15th Street in Boca Raton, FL, contact your Stonecrest International Realty agent at 561-707-9933.
Similar Listings Nearby
Listing courtesy of Re/Max Rex, (561)–220–1520
© 2026 Beaches Multiple Listing Service BMLS. Information deemed reliable, but not guaranteed. This site was last updated Jan-06-2026 10:40:14 pm.
© 2026 Beaches Multiple Listing Service BMLS. Information deemed reliable, but not guaranteed. This site was last updated Jan-06-2026 10:40:14 pm.
580 SW 15th Street
Boca Raton, FL






































































