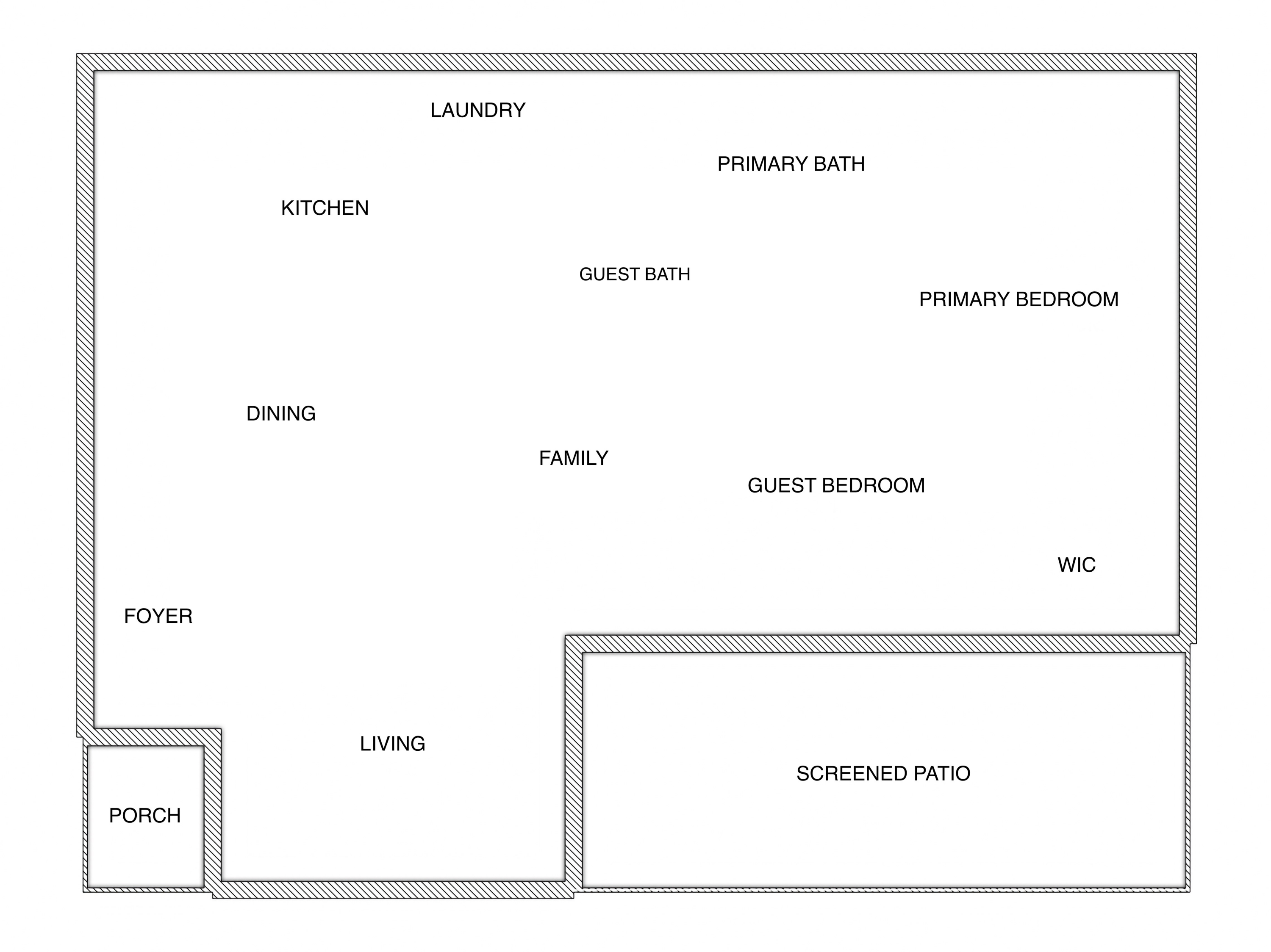
Welcome Home! This Impressive 2 bed / 2 bath single-story villa is FULLY RENOVATED and boasts modern upgrades throughout. A true open-concept design connects the living, dining, and kitchen areas beneath vaulted ceilings and features a skylight that fills the home with natural light. The beautifully designed kitchen features Stainless Steel Appliances, Wood Cabinets, tiled countertops, custom glass bar top and more.Both bathrooms have been completely remodeled. The primary suite features fully tiled walls and flooring, a designer step down walk-in shower with upgraded fixtures, and a contemporary vanity. The guest bath includes a relaxing Jacuzzi tub.
Property Details
Price:
$305,000
MLS #:
RX-11144732
Status:
Active
Beds:
2
Baths:
2
Type:
Condo
Subtype:
Villa
Subdivision:
OAKWOOD II
Listed Date:
Dec 2, 2025
Finished Sq Ft:
1,212
Year Built:
1985
See this Listing
Schools
Interior
Pets Allowed
Restricted
Exterior
Community
55+
Development Name
OAKWOOD LAKES CONDOMINIUMS
Garage Spaces
0.00
Homeowners Assoc
Mandatory
Storm Protection: Accordion Shutter
Partial
Total Floors/Stories
1.00
Financial
HOA Fee
$500
Map
Community
- Address3790 Silver Lace Lane Boynton Beach FL
- SubdivisionOAKWOOD II
- CityBoynton Beach
- CountyPalm Beach
- Zip Code33436
Market Summary
Current real estate data for Condo in Boynton Beach as of Dec 18, 2025
778
Condo Listed
119
Avg DOM
193
Avg $ / SqFt
$268,699
Avg List Price
Property Summary
- Located in the OAKWOOD II subdivision, 3790 Silver Lace Lane Boynton Beach FL is a Condo for sale in Boynton Beach, FL, 33436. It is listed for $305,000 and features 2 beds, 2 baths, and has approximately 1,212 square feet of living space, and was originally constructed in 1985. The current price per square foot is $252. The average price per square foot for Condo listings in Boynton Beach is $193. The average listing price for Condo in Boynton Beach is $268,699. To schedule a showing of MLS#rx-11144732 at 3790 Silver Lace Lane in Boynton Beach, FL, contact your Stonecrest International Realty agent at 561-707-9933.
Similar Listings Nearby
Listing courtesy of Dalton Wade Inc, (888)–668–8283
© 2025 Beaches Multiple Listing Service BMLS. Information deemed reliable, but not guaranteed. This site was last updated Dec-18-2025 7:56:55 am.
© 2025 Beaches Multiple Listing Service BMLS. Information deemed reliable, but not guaranteed. This site was last updated Dec-18-2025 7:56:55 am.
3790 Silver Lace Lane
Boynton Beach, FL






































