Welcome to this Mediterranean-style retreat in the heart of Wellington, FL, perfectly situated on a quiet cul-de-sac with sweeping waterfront views and a private oversized boat dock. Offering 2,403 square feet of light-filled living space, this beautifully maintained home is designed for both everyday comfort and memorable entertaining. Step through the impressive wooden entry doors into a warm and inviting interior, featuring a cozy living room fireplace. The primary suite is conveniently located on the ground floor, while two additional bedrooms, a loft and bathroom upstairs provide space for family or guests. A versatile office/flex room on the main level adds to the functionality of this home. Recent upgrades include a new clay tile roof and a newly resurfaced, heated pool. The outdoo
Property Details
Price:
$975,000
MLS #:
RX-11117017
Status:
Active
Beds:
3
Baths:
3
Type:
Single Family
Subtype:
Single Family Detached
Subdivision:
GREENVIEW SHORES 2 OF WELLINGTON
Listed Date:
Aug 19, 2025
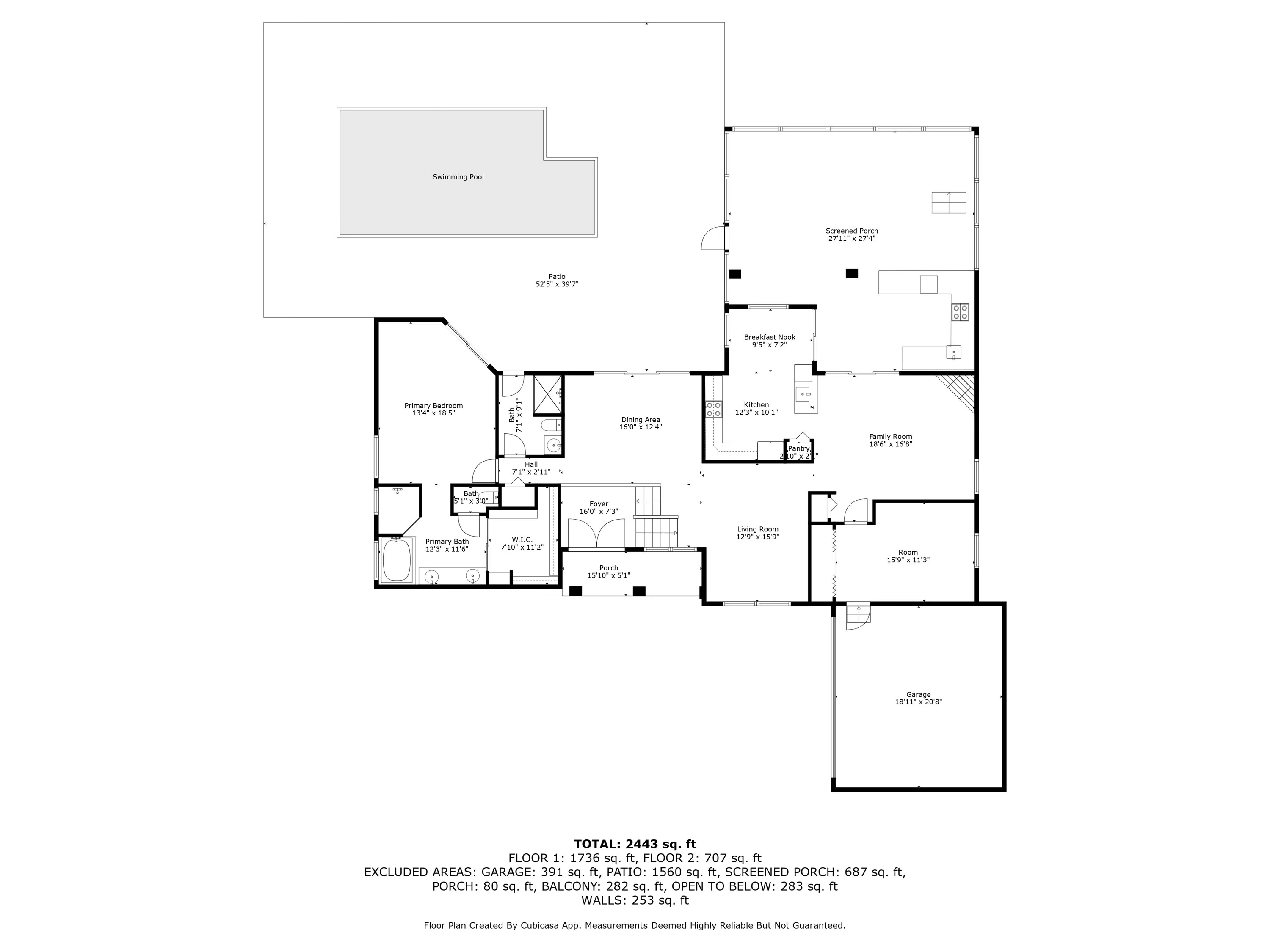
Finished Sq Ft:
3,516
Year Built:
1986
See this Listing
Schools
Elementary School:
New Horizons Elementary School
Middle School:
Polo Park Middle School
High School:
Wellington High School
Interior
Pets Allowed
Yes
Exterior
Garage Spaces
2.00
Homeowners Assoc
None
Storm Protection: Impact Glass
Partial
Storm Protection: Panel Shutters
Complete
Total Floors/Stories
2.00
Financial
Map
Community
- Address2195 Portland Court Wellington FL
- SubdivisionGREENVIEW SHORES 2 OF WELLINGTON
- CityWellington
- CountyPalm Beach
- Zip Code33414
Market Summary
Current real estate data for Single Family in Wellington as of Dec 13, 2025
340
Single Family Listed
153
Avg DOM
437
Avg $ / SqFt
$3,110,699
Avg List Price
Property Summary
- Located in the GREENVIEW SHORES 2 OF WELLINGTON subdivision, 2195 Portland Court Wellington FL is a Single Family for sale in Wellington, FL, 33414. It is listed for $975,000 and features 3 beds, 3 baths, and has approximately 3,516 square feet of living space, and was originally constructed in 1986. The current price per square foot is $277. The average price per square foot for Single Family listings in Wellington is $437. The average listing price for Single Family in Wellington is $3,110,699. To schedule a showing of MLS#rx-11117017 at 2195 Portland Court in Wellington, FL, contact your Stonecrest International Realty agent at 561-707-9933.
Similar Listings Nearby
Listing courtesy of Equestrian Sotheby’s International Realty Inc., (561)–771–2626
© 2025 Beaches Multiple Listing Service BMLS. Information deemed reliable, but not guaranteed. This site was last updated Dec-12-2025 11:44:57 pm.
© 2025 Beaches Multiple Listing Service BMLS. Information deemed reliable, but not guaranteed. This site was last updated Dec-12-2025 11:44:57 pm.
2195 Portland Court
Wellington, FL









































