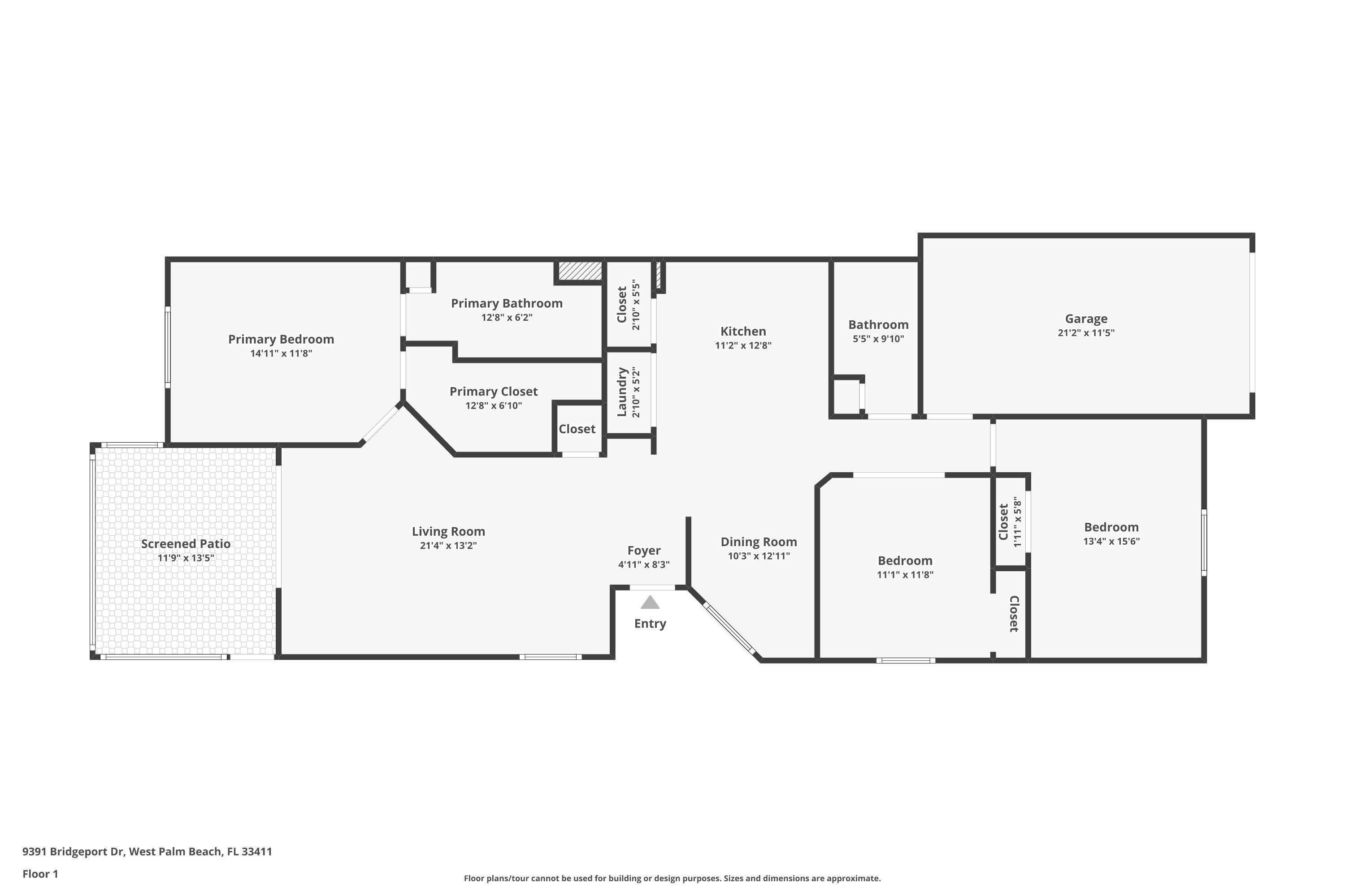
For sale in a 55+ retirement community of Century Village an absolutely move in condition 2 Bedroom, 2 Full updated Baths condo for sale on the second floor. This is a corner unit with an amazing wraparound enclosed porch used as a breakfast room and/or additional living room. It has all new hurricane windows. The condo boasts a newly remodeled kitchen with all wood 72 inch cabinets and expended cabinets into the dining room. This gourmet kitchen has granite countertops and backsplash, two separate sinks and stainless steel appliances, C/A. Century Village has many amenities to offer to residents, like over a 1000 seat clubroom to watch shows and movies, indoor and outdoor pools, courtesy bus service, medical facilities, beauty shop, tennis, boating and more. Close to PBI airport, beaches
Listing Provided Courtesy of Real Estate Center of West Palm Beach at 305-342-4573
Property Details
Price:
$284,900
MLS #:
R11068442
Status:
Active
Beds:
2
Baths:
2
Type:
Condo
Subtype:
Condominium
Subdivision:
CENTURY VILLAGE/ PLYMOUTH CONDOS A TO F
Neighborhood:
5400
Listed Date:
Sep 18, 2025
Finished Sq Ft:
945
Total Sq Ft:
1,432
Year Built:
1971
See this Listing
Schools
Interior
Appliances
Electric Water Heater, Dishwasher, Electric Range, Microwave, Refrigerator, Water Heater
Bathrooms
2 Full Bathrooms
Cooling
Ceiling Fan(s), Central Individual, Electric
Flooring
Ceramic Tile
Heating
Central, Electric
Laundry Features
Washer Hookup, None
Exterior
Association Amenities
Pool, Billiard Room, Boating, Bocce Ball, Clubhouse, Community Room, Courtesy Bus, Fitness Center, Indoor Pool, Library, Parking, Pickleball Court(s), Picnic Area, Sauna, Shuffleboard Court, Tennis Court(s)
Community
55+
Construction Materials
CBS
Parking Features
Assigned, Guest
Security Features
Gated with Guard, Security Patrol
Financial
HOA Fee
$780
HOA Frequency
Monthly
HOA Includes
Recreation Facility, Cable TV, Common Areas, Insurance, Maintenance Grounds, Pest Control, Security, Trash
Tax Year
2024
Taxes
$2,081
Map
Community
- Address30 Plymouth C West Palm Beach FL
- SubdivisionCENTURY VILLAGE/ PLYMOUTH CONDOS A TO F
- CityWest Palm Beach
- CountyPalm Beach
- Zip Code33417
Subdivisions in West Palm Beach
- ANDROS ISLE REPL
- CAMDEN CONDO B-P CENTURY VILLAGE
- CYPRESS LAKES 09
- FOREST HILL GARDENS CONDO EAST
- FOREST RIDGE PARK
- GOLFS EDGE F
- GOLFVIEW HEIGHTS 01
- METROPOLITAN CONDO
- OAKTON PRESERVE
- PALM ACRES ESTATE
- PARKWAY VILLAGE
- RANCHETTE LAKE
- ST ANDREWS PALM BEACH CONDO 03
- SUBURBAN HOMESITES
- TERRACINA JOHNSON PROP PUD
- VILLAGE SANDALWOOD LAKES 01
- VILLAS OF PALM BEACH PL 3 LOT 188
- WHITEHALL CONDO 01-14
Market Summary
Current real estate data for Condo in West Palm Beach as of Mar 12, 2026
1,103
Condo Listed
127
Avg DOM
487
Avg $ / SqFt
$1,183,355
Avg List Price
Property Summary
- Located in the CENTURY VILLAGE/ PLYMOUTH CONDOS A TO F subdivision, 30 Plymouth C West Palm Beach FL is a Condo for sale in West Palm Beach, FL, 33417. It is listed for $284,900 and features 2 beds, 2 baths, and has approximately 945 square feet of living space, and was originally constructed in 1971. The current price per square foot is $301. The average price per square foot for Condo listings in West Palm Beach is $487. The average listing price for Condo in West Palm Beach is $1,183,355. To schedule a showing of MLS#r11068442 at 30 Plymouth C in West Palm Beach, FL, contact your Stonecrest International Realty agent at 561-707-9933.
Similar Listings Nearby

30 Plymouth C
West Palm Beach, FL
